Luxury rent house「omoya」

敷地内にはカフェ、蔵一棟貸しのレンタルスペース、プライベート畑を併設。小さなコミュニティを形成し、地域にも溶け込んだ施設にすることで来訪者に日本の伝統建築の雰囲気を体感していただけます。

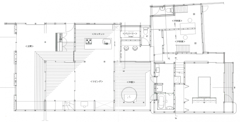
△omoya間取り

交 通 JR琵琶湖線「彦根」駅より徒歩15分 近江鉄道「彦根芹川」駅より徒歩10分
湖国バス「銀座」停まで徒歩10分 ※「銀座」停より「県立大学」停まで15分
間取形式 6SLDK 約150㎡+ウッドデッキ 22.5㎡+ウッドデッキ+45㎡/戸
建築年月 天保14年(1843年)
改修年月 2013年2月完成
構 造 木造平屋 瓦葺
賃 料 140,000円/戸
敷 金       0円/戸
礼 金 200,000円/戸
火災保険料  要加入
共 益 費 15,000円/戸 ※水道料金・共用部分電気代・自治会費・管理手数料・駐車場1台分込み
契約期間 2年(短期解約違約金なし) 更新時更新料なし
連帯保証人 不要
設 備
・アイランドキッチン ・シャワー付き浴室 ・トイレ ・ウォシュレット・家具等・インターネット・全室エアコン付き

free Template by uicookies.com free Template by uicookies.com

物件の購入はこちら